Description
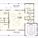
This two-story home plan offers a total of 2,380 sq. ft. of heated living space, providing a balanced layout ideal for families or owners seeking an efficient and well-organized design. The main level includes 1,760 sq. ft., while the upper level adds 620 sq. ft., creating a smooth division between shared living areas and private rooms.
Charming Exterior & Outdoor Living
The design includes generous outdoor features:
-
484 sq. ft. of porch space
-
530 sq. ft. of deck space
-
470 sq. ft. of garage/storage area
These covered and open areas make the home suitable for scenic properties or relaxed outdoor living.
Smart & Functional Floor Plan
This plan is organized for comfort, practicality, and flow. Key details include:
-
3 bedrooms
-
3 full bathrooms
-
Vaulted ceilings up to 12 ft in the great room
-
10 ft ceiling in the master bedroom
-
Standard main-level ceiling height: 9 ft
-
Second-level ceiling height: 8 ft
The layout supports everyday living while offering flexibility for guests or extended family.
Garage & Storage Details
The home includes:
-
Attached garage (470 sq. ft.)
-
Suitable for storage, workshop use, or multiple vehicles depending on layout
-
Convenient access to the interior
Dimensions & Construction Details
This plan is drafted with professional precision and includes:
-
Width: 70′-5″
-
Depth: 47′-5″
-
Roof Pitch: Primary 8:12 / Secondary 4:12
-
Roof Load: 40 psf
-
Exterior Walls: 2×6 framing
-
Insulation: R-19 walls, R-38 ceilings
-
Roof Framing: Stick framing
-
Foundation Options: Crawlspace or basement
Ideal for Multiple Lifestyles
Whether designed as a primary residence, a second home, or an investment build, this two-story layout adapts seamlessly to many property types. Its combination of generous square footage, outdoor living areas, and attractive architectural styling makes it suitable for a wide range of locations.
Why This Plan Stands Out
-
Spacious two-story design
-
Vaulted ceiling in the main living area
-
Flexible foundation options
-
Energy-efficient construction
-
Large porch and deck areas
-
Attached garage with storage potential
Plan Code: 10040


















Reviews
There are no reviews yet. Be the first one to write one.