35% OFF / Limited to 200 customers / Code: LAUNCH35

CADs NOW!

CAD files are a complete set of construction drawings delivered electronically.
They can be used for any type of modification including major design changes and engineering and include a release granting permission to modify the plan.

This package also comes with a PDF set of plans and a multi-use building license, granting permission to construct the home an unlimited number of times, along with a copyright release for making modifications and printing unlimited copies.

CAD files are provided in .dwg format and will be emailed to you immediately after purchase. Material List Included!

PDFs NOW!

Digital plans emailed to you in PDF format that allows for printing copies and sharing electronically with contractors, subs, decorators, and more. This package includes a license to build the home one time. Material List Included!

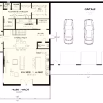
4 Bedroom Luxury Barndominium House Plan | 2 Story Barndo with Garage / Plan Code 10047

Packages from $129.00

FLOOR PLANS

‘What’s Included in Your Full Construction Plan Set’

✔ Full Architectural House Plans (PDF + DWG)
✔ Detailed Floor Plans 
✔ Fully Dimensioned Working Drawings (Imperial & Metric)
✔ Exterior Elevations (All 4 Sides)
✔ Interior Elevation Sheets (Kitchen, Bedrooms, Baths, etc.)
✔ Building Sections + Wall Section Details
✔ Roof Framing Plan
✔ Foundation & Footing Plan
✔ Electrical Layout 
✔ Plumbing System Layout 
✔ Window Schedule
✔ Door Schedule
✔ Fire Safety / Smoke Detector Layout
✔ Complete Material List (Full BOM)
✔ Construction Notes & Code Guidelines
✔ High-Resolution Interior & Exterior Renders
✔ Unlimited Printing Rights
✔ Lifetime Access + Re-downloads

 

‘Guarantees & Professional Standards’

✔ 30-Day Money Back Guarantee
✔ Instant Digital Download
✔ Professionally Designed by Licensed Architects
✔ Code-Compliant Drawings (IRC Residential Code)
✔ Licensed for Single-Use Construction
✔ Free Plan Modifications Guide (PDF)

35% OFFOnly 200 Customers • Code: LAUNCH35

4 Bedroom Luxury Barndominium House Plan | 2 Story Barndo with Garage / Plan Code 10047

Packages from $129.00

fLOOR PLANS

CHOOSE YOUR PLAN

CADs NOW!

CAD files are a complete set of construction drawings delivered electronically.
They can be used for any type of modification including major design changes and engineering and include a release granting permission to modify the plan.

This package also comes with a PDF set of plans and a multi-use building license, granting permission to construct the home an unlimited number of times, along with a copyright release for making modifications and printing unlimited copies.

CAD files are provided in .dwg format and will be emailed to you immediately after purchase. Material List Included!

PDFs NOW!

Digital plans emailed to you in PDF format that allows for printing copies and sharing electronically with contractors, subs, decorators, and more. This package includes a license to build the home one time. Material List Included!

‘What’s Included in Your Full Construction Plan Set’

✔ Full Architectural House Plans (PDF + DWG)
✔ Detailed Floor Plans 
✔ Fully Dimensioned Working Drawings (Imperial & Metric)
✔ Exterior Elevations (All 4 Sides)
✔ Interior Elevation Sheets (Kitchen, Bedrooms, Baths, etc.)
✔ Building Sections + Wall Section Details
✔ Roof Framing Plan
✔ Foundation & Footing Plan
✔ Electrical Layout 
✔ Plumbing System Layout 
✔ Window Schedule
✔ Door Schedule
✔ Fire Safety / Smoke Detector Layout
✔ Complete Material List (Full BOM)
✔ Construction Notes & Code Guidelines
✔ High-Resolution Interior & Exterior Renders
✔ Unlimited Printing Rights
✔ Lifetime Access + Re-downloads

 

‘Guarantees & Professional Standards’

✔ 30-Day Money Back Guarantee
✔ Instant Digital Download
✔ Professionally Designed by Licensed Architects
✔ Code-Compliant Drawings (IRC Residential Code)
✔ Licensed for Single-Use Construction
✔ Free Plan Modifications Guide (PDF)

Description

4 Bedroom • 2 Story Barndo • Large Garage

Complete Construction Drawings (PDF + CAD)

This luxury barndominium house plan features a spacious 4 bedroom, 2-story layout, combining modern comfort with classic rustic barn-style architecture. Designed for real-world construction, this barndo is ideal for homeowners, builders, and developers seeking a high-end, functional home with a large garage or workshop space.

With its open-concept living areas, flexible interior spaces, and durable structure, this plan is perfectly suited for rural living, acreage homes, workshops, or long-term residential use.

HOUSE DETAILS

  • Total Area: 3,150 sq ft

  • Bedrooms: 4

  • Bathrooms: 3.5

  • Stories: 2

  • Width: 104 ft

  • Depth: 45 ft

  • Garage: Large 3-Car Garage / Workshop

DESIGN HIGHLIGHTS

  • Luxury barndominium architecture with modern rustic style

  • Spacious 2-story layout for family living

  • Open-concept kitchen, dining, and living area

  • Oversized multi-car garage with workshop potential

  • High garage ceiling ideal for trucks, storage, or equipment

  • Front porch for outdoor living

  • Durable, low-maintenance design for long-term use

KEY FEATURES

  • 4 Bedrooms

  • 3.5 Bathrooms

  • 2-Story Barndominium Design

  • Open-Concept Living Space

  • Large Garage / Workshop Area

  • Office or Flex Room

  • Mudroom & Dedicated Laundry Area

WHAT’S INCLUDED

Complete Digital Download

You will receive a full professional construction drawing package, suitable for construction, cost estimation, and permit preparation:

  • Full PDF Construction Drawing Set

  • Editable CAD Files (DWG format)

  • Floor Plans (Imperial & Metric)

  • Foundation & Structural Plans

  • Roof & Framing Plans

  • Exterior Elevations

  • Electrical, Plumbing & HVAC Plans

  • Fire Safety Layouts

  • Door & Window Schedules

  • Detailed Material Lists

MATERIAL LIST INCLUDED

This plan includes a comprehensive material specification list covering:

  • Concrete & structural systems

  • Framing and roofing materials

  • Exterior cladding & finishes

  • Insulation systems

  • Interior doors, windows & hardware

  • Electrical, plumbing & HVAC components

Ideal for accurate cost estimation and permit-ready planning.

IMPORTANT INFORMATION

  • Digital download only – no physical items shipped

  • Plans are not site-specific

  • Local building codes may require review by an architect or engineer

  • Files are provided for construction use only (resale not permitted)

Build big. Build smart.

This 4 bedroom luxury barndominium house plan delivers space, flexibility, and durability a complete solution for modern barndo living with serious garage capacity.

Additional information

Dimensions 6889040696 in
Package

CAD + PDF Unlimited Build, PDF (Instant Download)

Reviews

0.0 out of 5 stars (based on 0 reviews)
Excellent0%
Very good0%
Average0%
Poor0%
Terrible0%

 

There are no reviews yet. Be the first one to write one.

Frequently Asked Questions (FAQ)

Can I modify the plan?
Yes, all plans can be customized. You can change room sizes, swap windows, adjust layouts, or modify elevations. If you need help, we provide a modification guide and can connect you with a professional designer.

Will this plan work in my state/country?
Yes, our plans work in most locations. However, some areas may require local engineering, site-specific adjustments, or climate-based changes. Your builder or local engineer can finalize anything needed.

What file formats will I receive?
You will receive high-resolution PDFs. For packages including CAD files, you will also receive editable DWG files.

Do I need an architect to approve the plans?
In many areas, no. However, some regions require a licensed local professional to review or stamp the plans. This depends on your local building department.

How long does it take to receive the plans?
Instant delivery. Your full plan set is automatically emailed to you immediately after purchase.

Featured Home Designs / Handpicked for You