Description
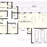
This thoughtfully designed two-story home offers 3,120 sq. ft. of finished living space, combining open living areas with well-planned private rooms for modern family living. The main level provides 2,500 sq. ft., while the upper level adds 620 sq. ft., creating a balanced layout ideal for everyday comfort and entertaining.
Smart & Functional Floor Plan
This home features a highly efficient design with:
-
4 spacious bedrooms
-
3 full bathrooms + 1 half bath
-
Main-level 10’ ceilings, with 16’ vaulted living area and 11’ vaulted primary suite
-
Seamless flow between living, dining, and kitchen areas
Outdoor Living & Expanded Space
Designed for indoor–outdoor enjoyment, this plan includes:
-
810 sq. ft. of covered porch space
-
80 sq. ft. deck area
-
Ideal for properties with views or outdoor entertaining
Garage & Storage Details
A large 630 sq. ft. attached garage provides:
-
Space for two vehicles
-
Additional area for storage or workshop
-
Direct, convenient access to the home
Dimensions & Construction Details
-
Width: 60’-3”
-
Depth: 35’-0”
-
Roof Pitch: 6:12 (primary), 4:12 & 3:12 (secondary)
-
Exterior Walls: 2×6 framing
-
Insulation: R-19 walls / R-38 ceilings
-
Ceiling Heights: 10’ main level, 10’ upper level
-
Vaulted Ceilings: 16’ living area, 11’ primary bedroom
-
Foundation Options: Crawlspace or basement
-
CAD & PDF formats available
Ideal For Modern Living
This home suits families seeking a spacious layout, generous outdoor living, and a well-engineered plan that adapts easily to different lots and construction needs. With its efficient design and versatile structure, it serves equally well as a primary residence, vacation home, or long-term investment.
Why This Plan Stands Out
-
Large, open living spaces
-
Multiple vaulted ceiling features
-
Flexible foundation options
-
Spacious covered porches
-
Attached two-car garage
-
Builder-ready CAD and PDF files
Plan Code 11006
















4 reviews for 4 Bedroom Modern Villa House Plan | Luxury Home Design / Plan Code 11006
Modern and very stylish I love it
Muchas gracias a Mrs. Kara. ¡El plan de la villa moderna de 4 dormitorios superó completamente mis expectativas! Los espacios interiores son amplios y luminosos, con cada habitación diseñada para ofrecer comodidad. La sala abierta con cocina y las terrazas son ideales para la vida familiar. El proceso de compra fue sencillo y los planos están muy bien preparados y detallados. ¡Lo recomiendo sin dudar!
Many thanks to Mrs. Kara. It was truly a wonderful experience for us. The plans are very high-quality and detailed. You can shop with complete peace of mind.
I went with the 4 bedroom modern villa plans and honestly it’s been worth every penny. The layout feels super open, tons of natural light, and each bedroom has its own space so nobody feels crowded. The plans were easy for my builder to follow, no stress at all. Feels modern stylish but still really comfortable to live in.